Objekt 1282
Freistehendes Einfamilienhaus in Lahr-Stadt, ruhige Lage, Garage und Garten
Objekt 1282
Freistehendes Einfamilienhaus in ruhiger Lage von Lahr
Objektort:
77933 Lahr.
Lage / Umfeld:
Gute und ruhige stadtnahe Lage in Lahr.
Objekttyp:
Freistehendes Einfamilienhaus mit Garage und Garten.
Objekt:
Äußerst gepflegter Zustand. Isolierverglasung in den Wohnräumen. Außenwände isoliert. Wintergarten mit automatischer Be- und Entlüftung sowie Beschattung. Im Wohnzimmer voll automatisch gesteuerte Aluminium-Rollläden. Moderne Einbauküche.
Im Erdgeschoss liegen 4 Zimmer, Wintergarten, Küche, ein Badezimmer mit Fenster und Badewanne sowie ein separates WC mit Fenster. Vom Wohnzimmer besteht Zugang zum Wintergarten. Das Schlafzimmer hat Blick in den Garten. Die beiden anderen Zimmer werden derzeit als Kinderzimmer genutzt.
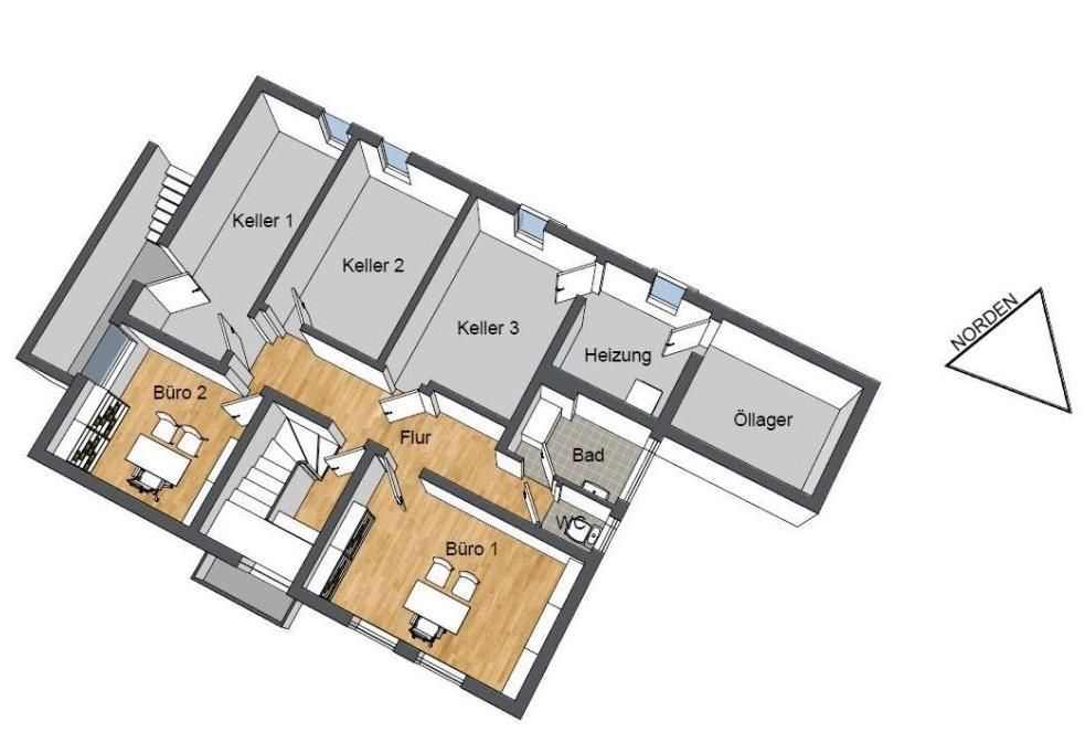
Im Untergeschoss gibt es 2 Zimmer und ein Badezimmer mit Dusche. Das WC ist separat. Neben dem Heizraum mit dem Gas-Brennwert-Kessel sind 3 Kellerräume vorhanden. Im Öllagerraum steht der nicht mehr genutzte Heizöltank.
Grundstücksfläche:
604 m².
Wohnfläche:
Ca. 145 m².
Baujahr:
1972, modernisiert 1997. Ölheizung durch Gas-Brennwertkessel 2009 ersetzt.
Zubehör:
Beheizbarer Wintergarten mit automatischer Be- und Entlüftung sowie Beschattung. Gepflegter Zier- und Gemüsegarten und Obstbäumen. Sat-Anschluss für Fernsehempfang. DSL für Internet und Telefon.
Bezug:
Kurzfristig nach Absprache möglich.
Heizung:
Gasheizung mit Brennwertkessel seit 2009.
Energieausweis:
Verbrauchsausweis.
Energieverbrauchskennwert: 120 kWh/(m²*a).
Energieeffizienzklasse: D.
Wesentlicher Energieträger: Gas.
Kaufpreis:
625.000 €.
Käufercourtage:
3,57 % inklusive MwSt. vom notariell beurkundeten Kaufpreis.
Besichtigung:
Eine Besichtigung dieses empfehlenswerten Hauses kann nach Ihren zeitlichen Wünschen kurzfristig erfolgen.
AGB:
Es gelten die Allgemeinen Geschäftsbedingungen (AGB) der Firma Dipl.-Ing. FH Claus Leckel Immobilien.




